Office building
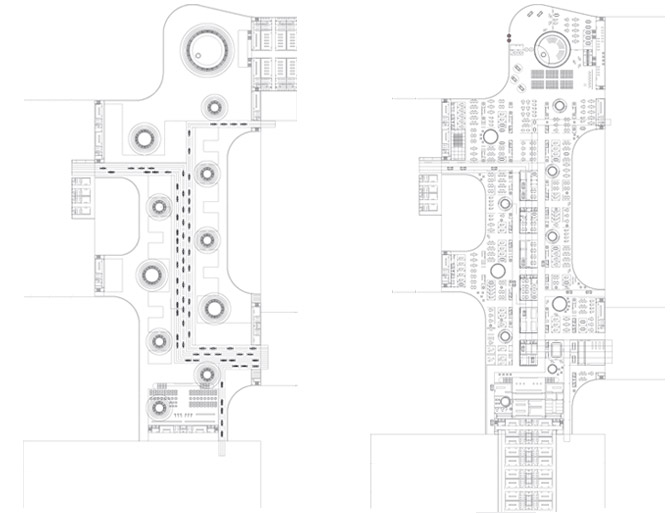
BMW plant Leipzig

Competition 2002
 
 
 
 
 
 
  informationen projektauswahl aktuell